20 Jahre Grünliberale Winterthur – Jubiläumsfeier im Technorama

Am 31.10.2005 wurde die Grünliberalen Stadt Winterthur gegründet.
(Bild: Gründungsmitglieder)
Gabriel Tanner, Ingenieur Brückenbau, Kandidat Stadtparlament

Gabriel Tanner, Ingenieur Brückenbau, Kandidat Stadtparlament
Scheinüberschuss statt Substanz – Warum das Budget 2026 Sorgen bereitet

Scheinüberschuss statt Substanz – Warum das Budget 2026 Sorgen bereitet
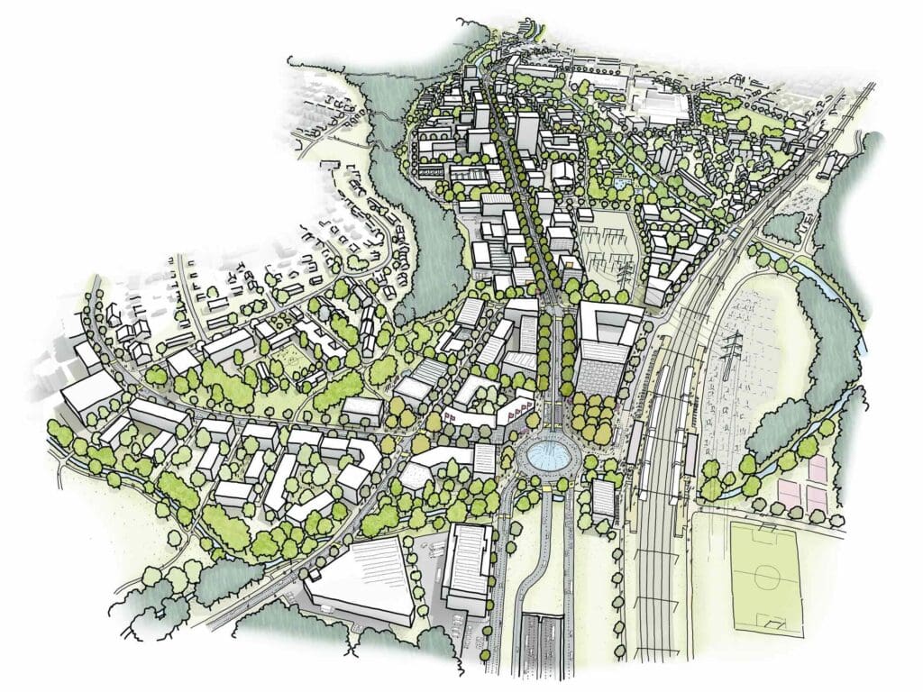
GLP lanciert Petition «Zukunft Stadtentwicklung – Bundesrat muss Infrastrukturprojekte in Winterthur höher priorisieren»

Die tiefe Priorisierung der drei Winterthurer Schlüsselprojekte durch den ETH-Bericht «Verkehr ’45» ist für die Stadt Winterthur nicht akzeptierbar. Um die schlechte Bewertung der überregional zentralen Infrastrukturprojekte zu korrigieren, lancieren die Grünliberalen eine Petition. Sie rufen Bevölkerung, Organisationen und alle politischen Kräfte Winterthurs auf, sich mit ihrer Unterschrift für eine vernetzte, lebenswerte und zukunftsfähige Stadt […]
GLP gehen eigenständig in die Stadtratswahlen

GLP zieht eigenständig in die Winterthurer Wahlen Die Grünliberalen Winterthur bedauern die nicht zustande gekommene Neuauflage der Progressiven Allianz in den städtischen Wahlen, begrüssen jedoch die von SP und Grünen in Aussicht gestellten Möglichkeiten gegenseitiger Unterstützung. Die GLP wird als polunabhängige und lösungsorientierte Kraft aus der Mitte ihre Sitze in Stadtrat und Schulpflege eigenständig verteidigen. […]
Im Gespräch mit Nora Ernst

Im Gespräch mit, Nora Ernst, Co-Präsidentin GLP Kanton Zürich